This page requires Javascript in order to provide all functionalities. Please enable Javascript.
This page uses Cookies in order to provide all functionalities. I accept SEA - Engineering Architecture - Conception, Gestion, Accompagnement
logo

SEA - Engineering Architecture

Conception, Gestion, Accompagnement

Test
Cliquez sur l'image pour entrer
Please wait - Content charging.

Catégories

Typologie : Logement : Immeubles d'habitation
Année : 2013
État : Étude

Données sur le projet

Situation : Sceaux, IDF France
Surface : 1831 m² Construction Surface de Plancher Nette [SPN]
Budget : 2'968'500 € HT Construction

Mission

Maître d'ouvrage : Association Scéenne pour l'Habitat Participatif Habitat participatif
Période : 06.2013 07.2013
Mission :
  • Concours sur invitation
Engagement : Auteur

Contributeurs

Mandataire principal

Architecture:  

Atelier Kaba

Hiroshi Naruse Architecte, Paysagiste

  • Direction et coordination
  • Élaboration de l'esquisse pour le projet paysager.

Partenaires

Architecture:  

Roman Schirmer Architecte

  • Analyse et définition : besoins, problématiques, exigences, risques. Rapport avec énoncé des besoins et approche méthodologique
  • Établissement du cahier des charges
  • Estimation des coûts administratifs, d'études et des travaux.
  • Clarification des conditions-cadres techniques, réglementaires, économiques et environnementales. Proposition conceptuelle et vérification de sa faisabilité.
  • Esquisse : Analyse des intentions, des besoins et du programme dans l'élaboration d'un concept architectural traduit en esquisse.
Architecture:  

Edouardo Rodriguez Architecte

Techniques

  • Inertie thermique
  • Haute performance thermique
  • Chauffage passif
  • Climatisation naturelle
  • Toiture végétalisée
  • Isolation naturelle
  • Charpente bois

Motifs

  • Continuités
  • Contrastes
  • Cadrages
play-pause
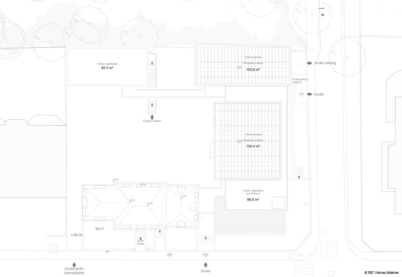
Immeuble basse consommation de 26 logements
Plan de masse