This page requires Javascript in order to provide all functionalities. Please enable Javascript.
This page requires Cookies in order to provide all functionalities. Please enable Cookies. SEA - Engineering Architecture - Design, Management, Monitoring
logo

SEA - Engineering Architecture

Design, Management, Monitoring

Test
Click on image to enter
Please wait - Content charging.

Categories

Typology : Urban Renewal
Year : 2015
Status : Study

Project data

Situation : Rio de Janeiro - RJ Brazil
Area : 500m² - 7000m² Construction
Area : 79 450 m² / 73 Operations
Budget : 185'900'000 R$

Mission

Client : Consórcio Porto Novo Private entity
Client : GDP - Gerenciamento e Desenvolvimento de Projetos Private entity
Period : 03.2014 03.2015
Mission :
  • Ph. 2 PRELIMINARY STUDIES
Engagement : Collaboration

Contributors

Project pilot

Architecture, Project management:  

GDP - Gerenciamento e Desenvolvimento de Projetos

Sergio Leusin Architect, Civil Engineer

  • Management and coordination
 

Roman Schirmer Architect

  • Clarification of the technical, legal, economic and environmental framework. Concept proposal and feasibility check.
play-pause
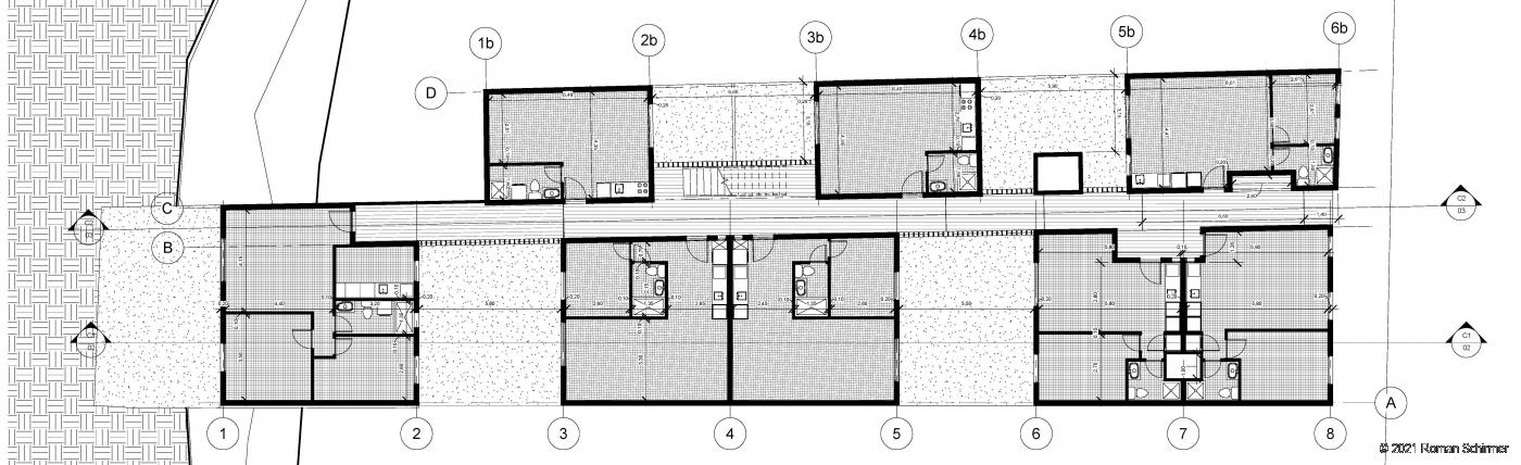
Urban renewal project 'Porto Maravilha' : 'Pedro Alves' Sector
Low-cost housing : 24 units
141-143 Rua Pedro Alves - Situation